
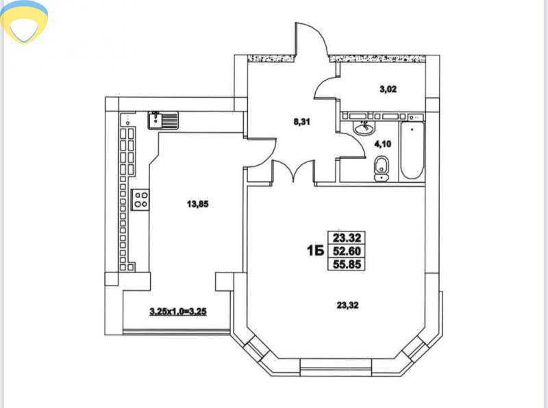
Однокімнатна квартира в ЖК "Зелений мис" на вул. Міланській, розташована на 3-му поверсі 10-поверхового будинку. Пропонує зручну планування, гардеробну кімнату. Стан - від забудовника.


Однокімнатна квартира в ЖК "Зелений мис" на вул. Міланській, розташована на 3-му поверсі 10-поверхового будинку. Пропонує зручну планування, гардеробну кімнату. Стан - від забудовника.