
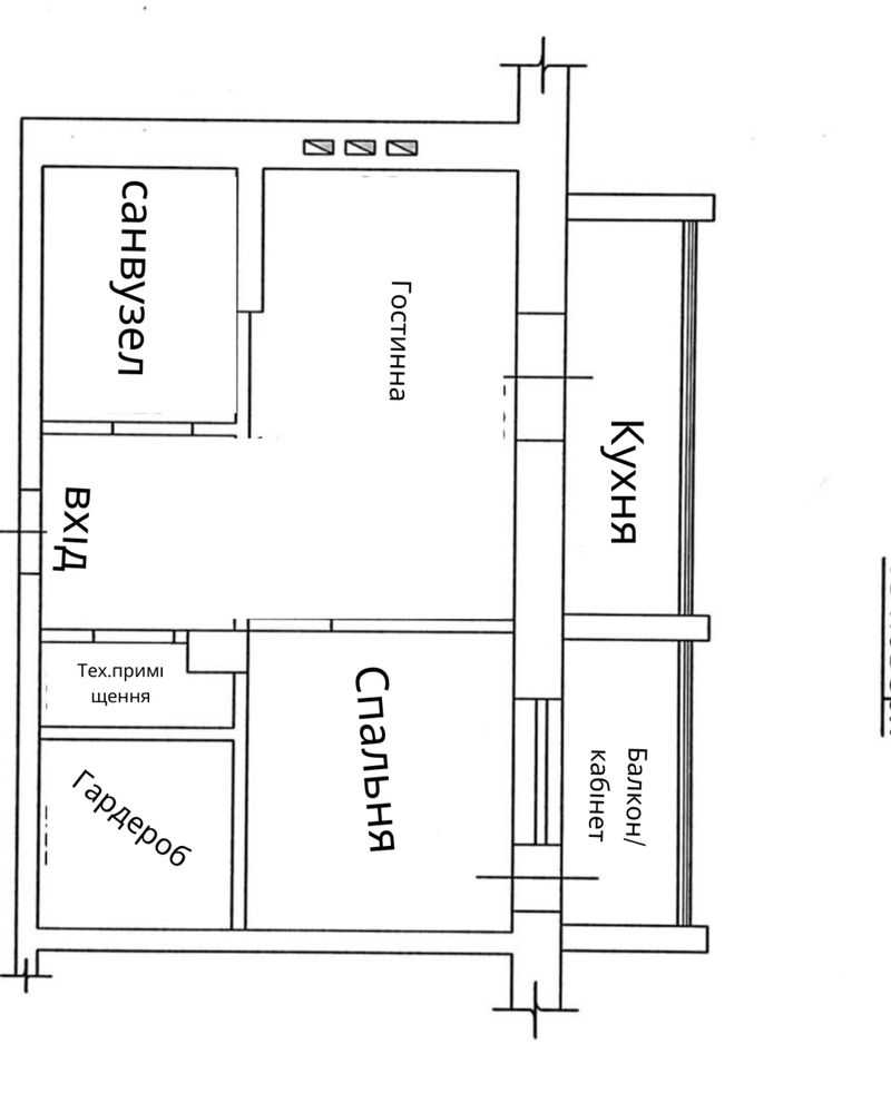
Стильна квартира-трансформер в елітному ЖК «Академгородок» на вулиці Зоопарковій, облаштована сучасним преміум-ремонтом. Площа вітальні 15,9 м², окрема спальня 10,7 м², кухня на заскленій лоджії 6,2 м² та робочий кабінет. На території комплексу розташовані ландшафтний дизайн, фонтан, дитячі та спортивні майданчики, цілодобова охорона. Закрита територія забезпечує комфорт. У квартирі встановлено індивідуальне газове опалення, підігрів підлоги, професійна шумоізоляція. Всі меблі та техніка від європейських виробників.













