
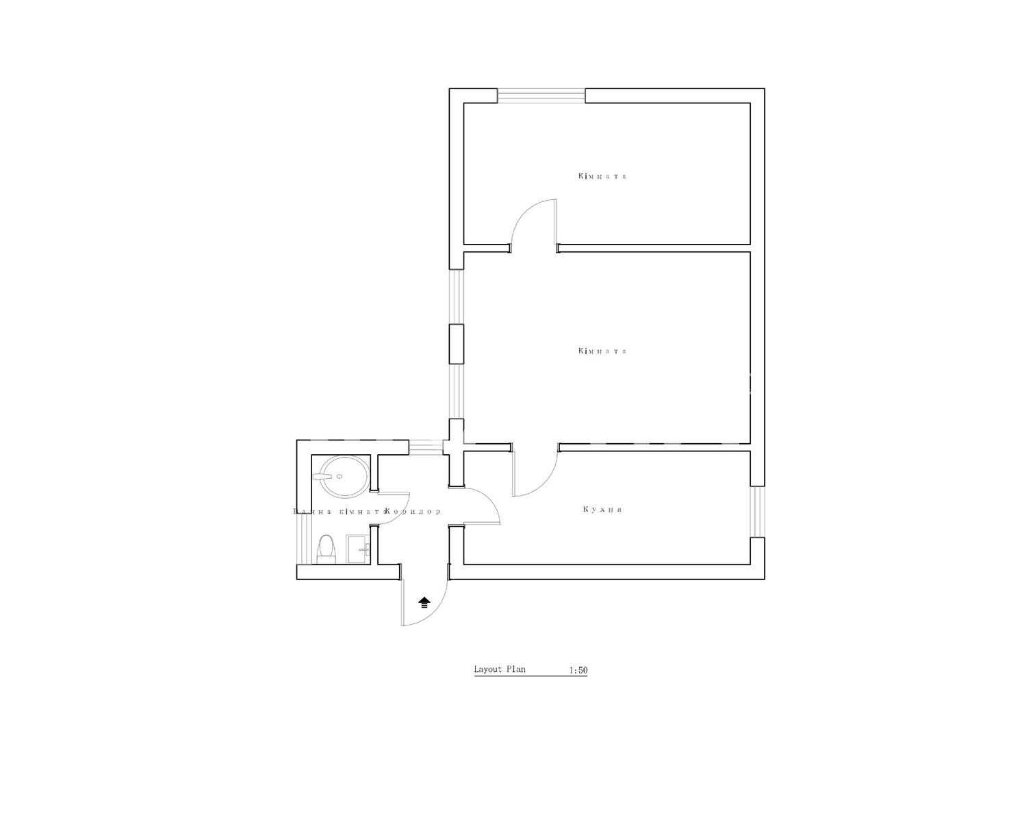
Пропонується двокімнатна квартира в історичному районі Одеси, на Сєченова провулку. Загальна площа квартири становить 37.5 квадратних метрів. Розташована на другому поверсі двоповерхового будинку з новою покрівлею. Усі кімнати освітлені, включаючи санвузол, коридор та кухню. У квартирі встановлено автономне опалення та колонка для води. Пропонується з меблями. Дворова територія закрита автоматичними воротами, є місце для автомобіля.













