
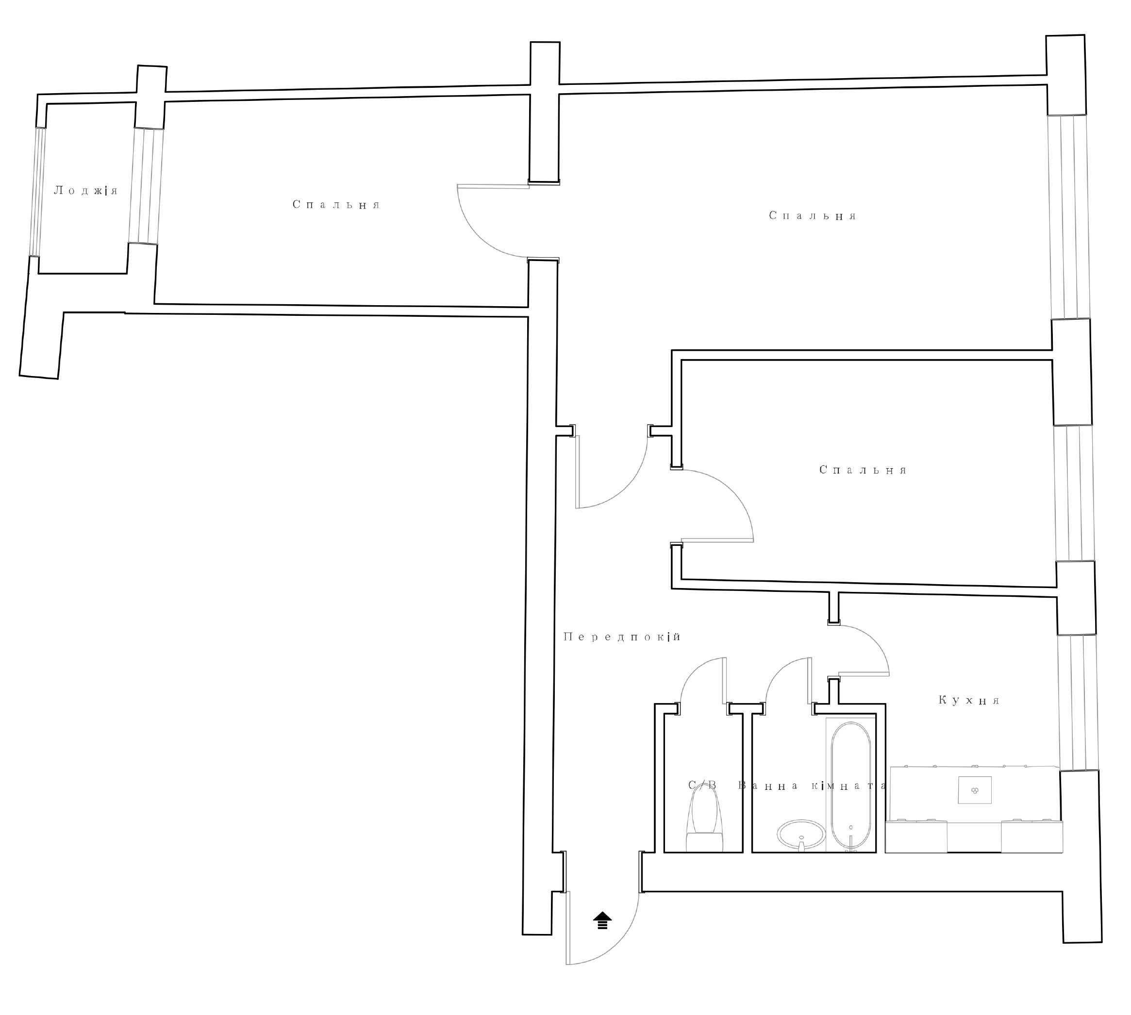
Пропонується 3-кімнатна квартира в цегляному будинку на вулиці Корольова. Квартира знаходиться на верхньому поверсі, має двостороннє планування з роздільними санвузлом. Вікна вітальні, спальні та кухні виходять у двір, одна кімната обладнана балконом з виглядом на місто. У квартирі замінено вікна на металопластикові, на підлозі в кімнатах паркет, на кухні плитка. Балкон засклений, квартира в житловому стані, але потребує ремонту. Доглянута прибудинкова територія з дитячим майданчиком та місцем для паркування. Район з розвинутою інфраструктурою.














