
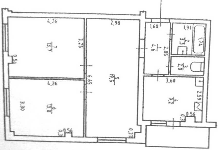
Квартира з трьома кімнатами в Одесі, розташована на Испанському переулку. Світла та затишна, з вітальнею, що веде до двох окремих спалень. Простора кухня зі скляним балконом та капітальним ремонтом. У парадній також проведено ремонт. Є власне паркомісце, будинок кооперативний з закритою територією. Поряд магазини, школа, парк. Добре розвинута транспортна інфраструктура, всього 10 хвилин до центру міста.





