[1770392] Продається 4-кімнатна квартира Центр | X-Estate

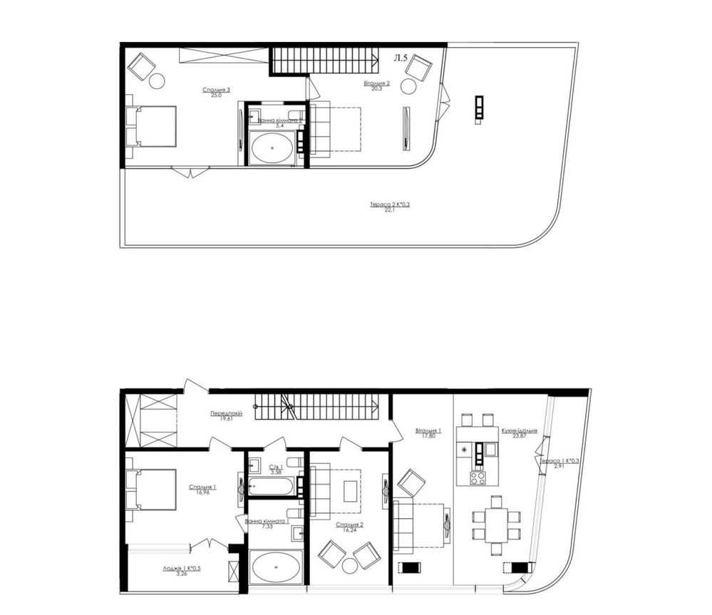
Пропонується видова квартира у новому комплексі ЖК Кандинський на Французькому бульварі в Одесі. Пентхаус має квадратуру 193,5 метра, включає 4 кімнати, з яких 2 є майстер-спальнями з власними ванними кімнатами. Простора кухня-студія площею 41 м2 з видом на море. Два рівні з террасами: одна 73 м2 і друга 9,7 м2, а також лоджія 6,5 м2. Житло розташоване на 21/22 поверхах.