
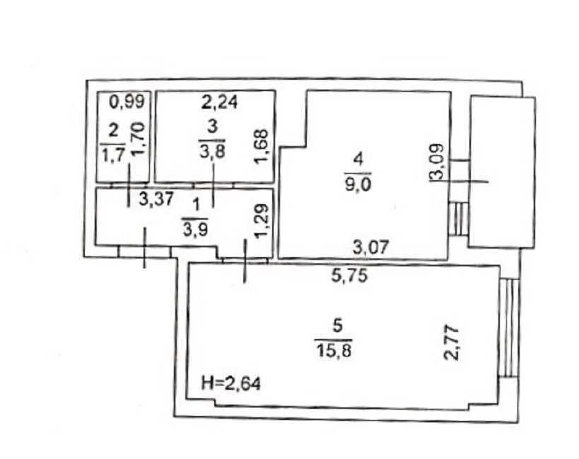
Пропонується 1-комнатна квартира в ЖК «7 Небо» з сучасним ремонтом. Загальна площа 36 кв.м, розміщена на 4-му поверсі 5-поверхового будинку. Квартира має продуману планировку: простора спальня 16 кв.м, кухня з виходом на балкон та гардеробна. Індивідуальне газове отоплення забезпечує комфорт у будь-яку пору року. У комплектацію входять меблі та побутова техніка. Вхід у будинок з обмеженим доступом. ЖК «7 Небо» пропонує розвинену інфраструктуру: магазини, кав'ярні, зони відпочинку та дитячі майданчики.









