[1931554] Продається 1-кімнатна квартира Новий Львів/Софіївка | X-Estate

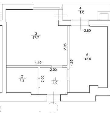
Пропонується 1-кімнатна квартира на вул. В. Стуса в ЖК "Парк Авеню", площею 40 м². Розташована на 9-му поверсі 10-поверхового клубного будинку бізнес-класу. Квартира має ізольовану кімнату (17,7 м²), кухню (13 м²), санвузол (4,2 м²) та балкон (1,0 м²). Інтер'єр вимагає ремонту, стан після будівельника. Індивідуальне газове опалення, панорамні вікна з подвійними склопакетами. Закрита, озеленена територія з облаштованими зонами відпочинку. Розвинута інфраструктура, поруч лікарні, магазини, пошта, банки.