
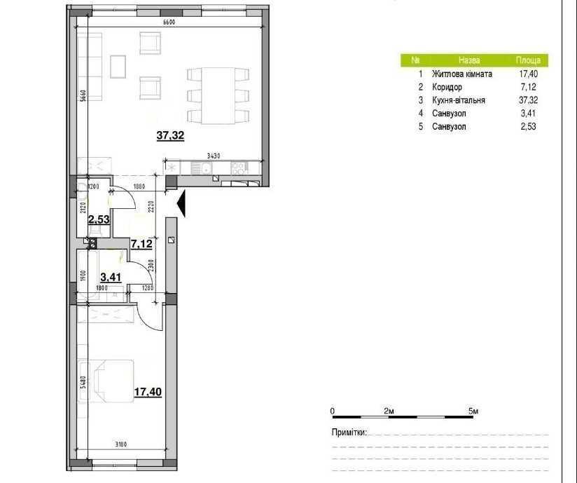
Квартира в зданому будинку в районі Левандівка, за адресою вул. Рудненська 8, ЖК Riel City2, з вільним плануванням. Однією з переваг є двостороннє розташування та панорамні вікна, що забезпечують природне освітлення. Простора кухня-вітальня площею 25 м², санвузол з вікном, місце під гардеробну. Опалення від дахової газової котельні з індивідуальним лічильником. Комфортна житлова комплектація з гостьовим паркінгом та дитячим майданчиком. Наявність розвинутої інфраструктури неподалік.







