
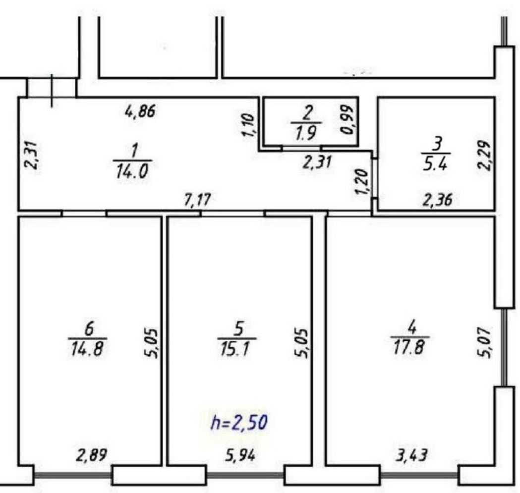
Пропонується 2-кімнатна квартира у зданому будинку ЖК Ріел Сіті на вул. Рудненська, 8 із загальною площею 68 кв. м. Житловий комплекс забезпечений сучасною інфраструктурою, якісною забудовою та зручною транспортною доступністю. Квартира готова до ремонту, працює ліфт, підключені всі комунікації: вода, електроенергія, опалення. Виготовлений технічний паспорт, зручне планування. У будинку є підземний паркінг та комірки для зберігання. Передбачені дві сходові клітки.
