
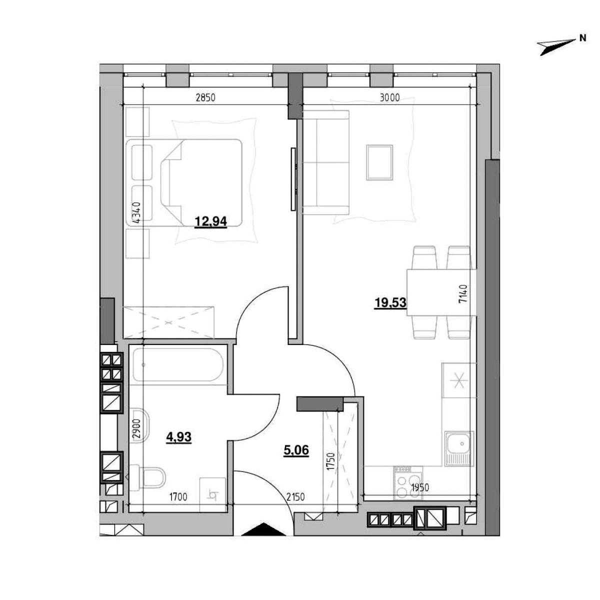
Пропонуються однокімнатні апартаменти в нульовому циклі на вулиці Шевченка, 31 у Львові. Квартира на третьому поверсі з панорамними вікнами та загальною площею 42.47 м². У просторі є кухня площею 19.53 м² та суміжний санвузол. Мережева котельня забезпечує опалення. Будинок вводиться в експлуатацію в 2 кварталі 2026 року. На території розвинена інфраструктура: школи, дитячі садочки, магазини та місця для відпочинку. Внутрішній дворик та підземний паркінг додають зручності.






