
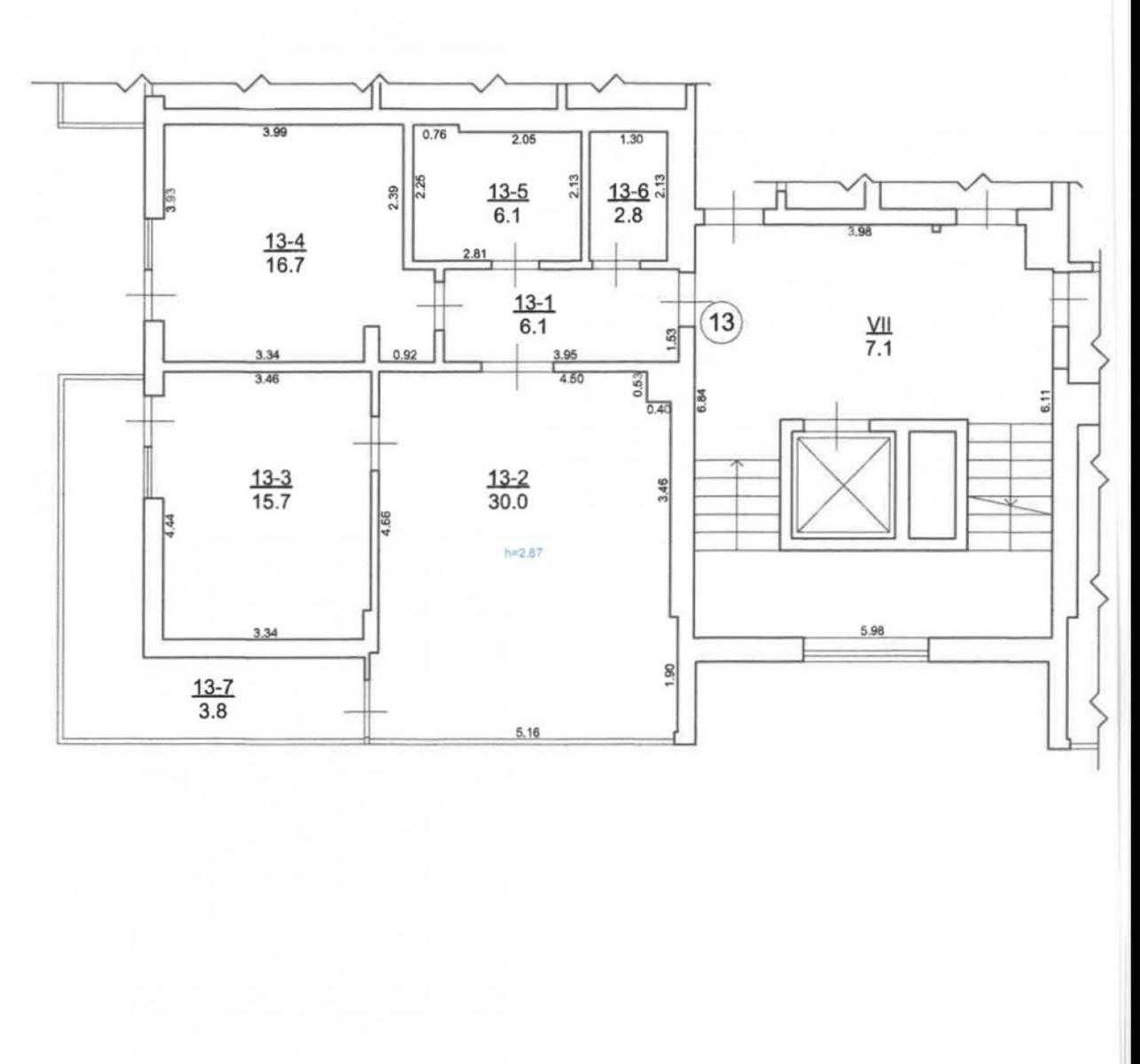
Квартира розташована на п'ятому поверсі клубного будинку бізнес-класу на вулиці Окружна у Львові. Простора кухня-студія площею 30 м² поєднується з двома ізольованими кімнатами. Два санвузли, балкон з безрамними скляними перилами, індивідуальне опалення. Встановлено підігрів підлоги, броньовані двері, алюмінієві вікна. Якісна шумоізоляція, підземний паркінг, закрита територія з відпочинковою зоною та дитячим майданчиком. Зручна локація, поряд садочки, школи та парк.




















