[1605600] Продається 2-кімнатна квартира Підзамче/Замарстинів | X-Estate

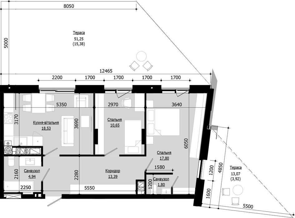
Пропонується двокімнатна квартира в комплексі SOUL PARK на вул. П. Орлика. Загальна площа складає 86.41 м², квартира розташована на першому поверсі в четвертій секції. Архітектура виконана у скандинавському стилі, що додає елегантності. Комплекс містить тераси та патіо, а також представницькі поверхи з персональним доступом для власників. На території передбачено комерційні приміщення загальною площею понад 2100 м², що включають магазини, кафе та фітнес-зали. Окрема будівля школи площею 1600 м² також додає зручності для мешканців.