
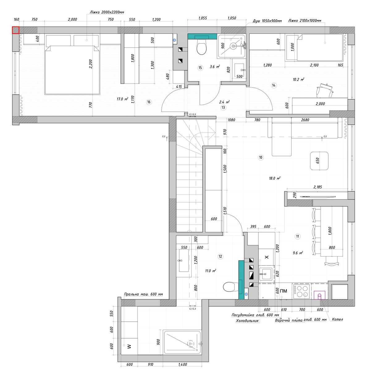
Квартира розташована у Львові, на вул. Івана Величковського, 70б, у сучасному житловому комплексі "Зелений двір". Це простора 2-кімнатна квартира площею 72 м² на 11-му поверсі. Будинок введено в експлуатацію, має зручне місце розташування в тихому районі Рясне-2 з розвиненою інфраструктурою – поряд є школа, лісопаркова зона та зупинки громадського транспорту. В квартирі роздільне планування, що дозволяє раціонально використовувати простір.








