
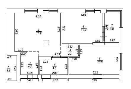
Пропонується квартира в житловому комплексі "Сінематик" на вул. Любінській, 93, площею 61,5 м², на 8-му поверсі 10-поверхового будинку. Квартира складається з двох ізольованих кімнат та кухні-вітальні площею 19,2 м². Комплекс має басейн, кінотеатр, скейт-парк та міні-торговий центр. З вікон відкривається чудова панорама. Квартира світла та сонячна, з розведеною сантехнікою та опаленням. Переказ ключів для ремонту очікується в листопаді-грудні 2025 року.






















