
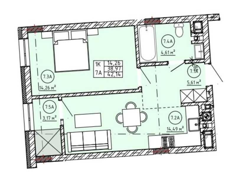
Однокімнатна квартира у ЖК Family House на вул. П. Орлика, Львів. Комплекс розташований у Шевченківському районі, поруч із Замарстинівським парком, у затишному зеленому куточку. Будинки різної поверховості утворюють закритий дворик з місцями для відпочинку, дитячими та спортивними майданчиками. Квартира площею 42,14 м² з панорамними вікнами, сучасним утепленням та індивідуальним газовим опаленням. В наявності підземний паркінг та ліфт.






