
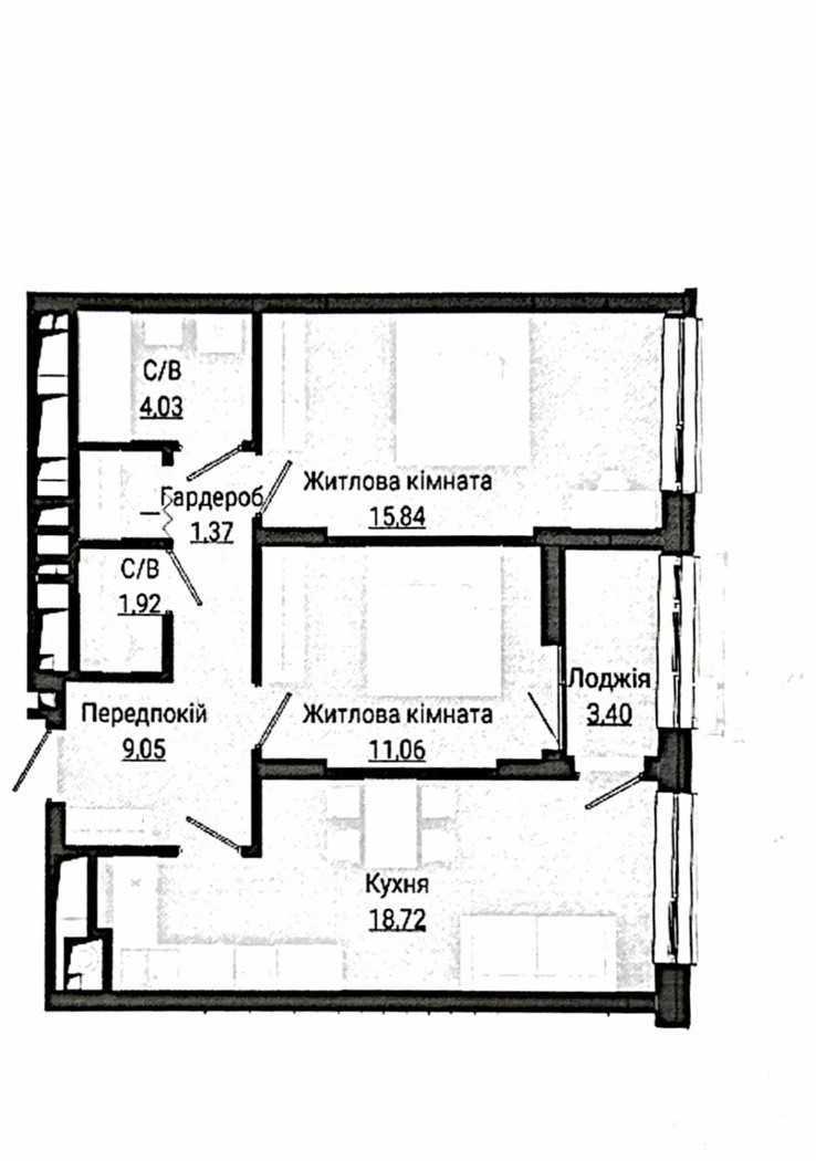
Пропонується 2 кімнатна квартира в новому житловому комплексі HELGA на вул. Кн. Ольги 120. Це будинок бізнес-класу з ліфтом, зведений з керамоблока, утеплений мінватою. Внутрішнє оздоблення включає гіпсову штукатурку, стяжку в житлових кімнатах. Опалення забезпечується двохфункційним котлом BOSCH та радіаторами. Квартира знаходиться на 2 поверсі з 7 загальних, загальна площа - 65.39 м². Запланована здача наприкінці року.
















