
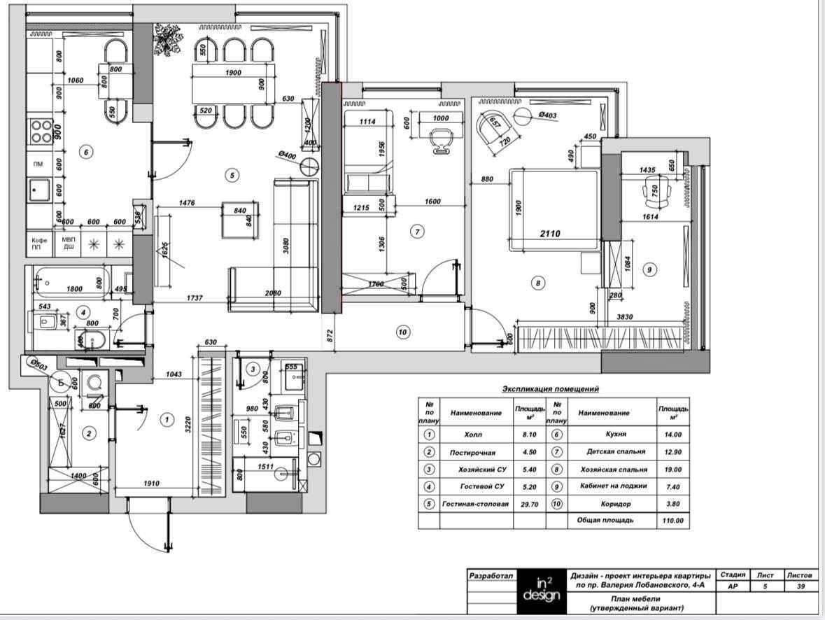
Пропонується квартира в ЖК Олександрівський на проспекті Валерія Лобановського, 4-Б у Солом'янському районі Києва. Ця простора квартира площею 110 кв. м. має 2 спальні, велику вітальню з панорамними вікнами, сучасну кухню, 2 санвузли, кабінет та пральню. Виконаний дизайнерський ремонт у 2021 році, квартира практично не була в експлуатації. Енергоефективність А+, застосовані високоякісні матеріали, система охорони та мінеральна фільтрація води. Зручне розташування: поруч з магазинами, школами та транспортом.










