
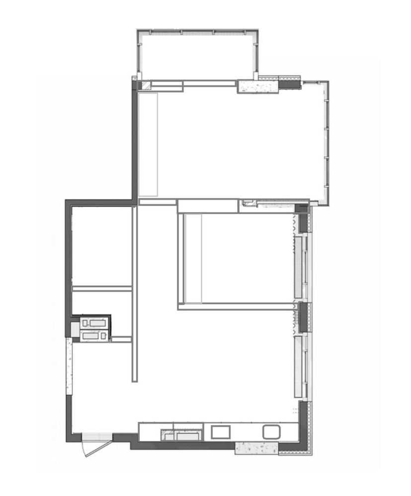
Квартира розташована по вул. Верхогляда 19а у районі Новопечерські Липки, площа 78,7 м2, на 12-му поверсі. Пропонує дві кімнати, зонування кухні та залу, балкон, гардероб, ванну кімнату і окрему пральню. Виконаний якісний ремонт у світлих тонах, квартира нова та готова до проживання.
















