
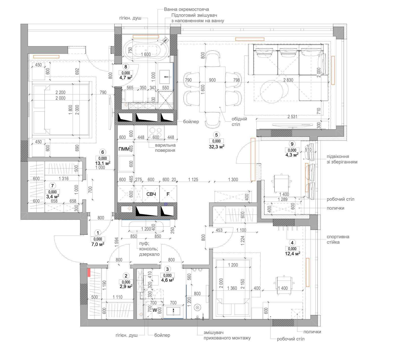
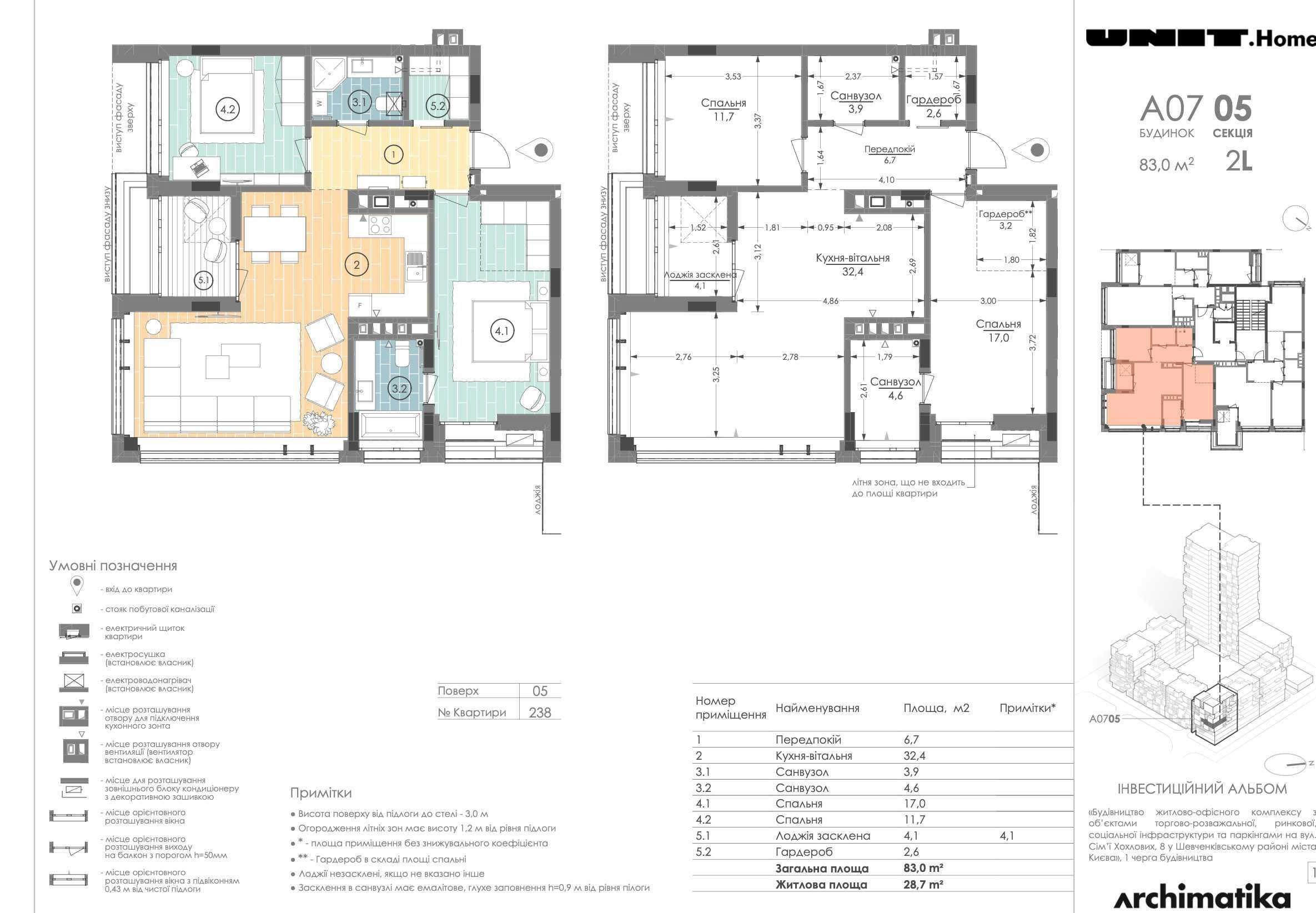
Пропонується двокімнатна квартира в ЖК UNIT.Home загальною площею 85,3 м². Простора кухня-вітальня (32,4 м²) з виходом на засклену лоджію (4,1 м²) і дві окремі спальні (17,0 м² та 11,7 м²) створюють комфортне середовище. Квартира має два санвузли та гардероб, що забезпечує зручність у повсякденному житті. Розташована на 5-му поверсі, квартира пропонується без ремонту, з готовим дизайн проектом.














