
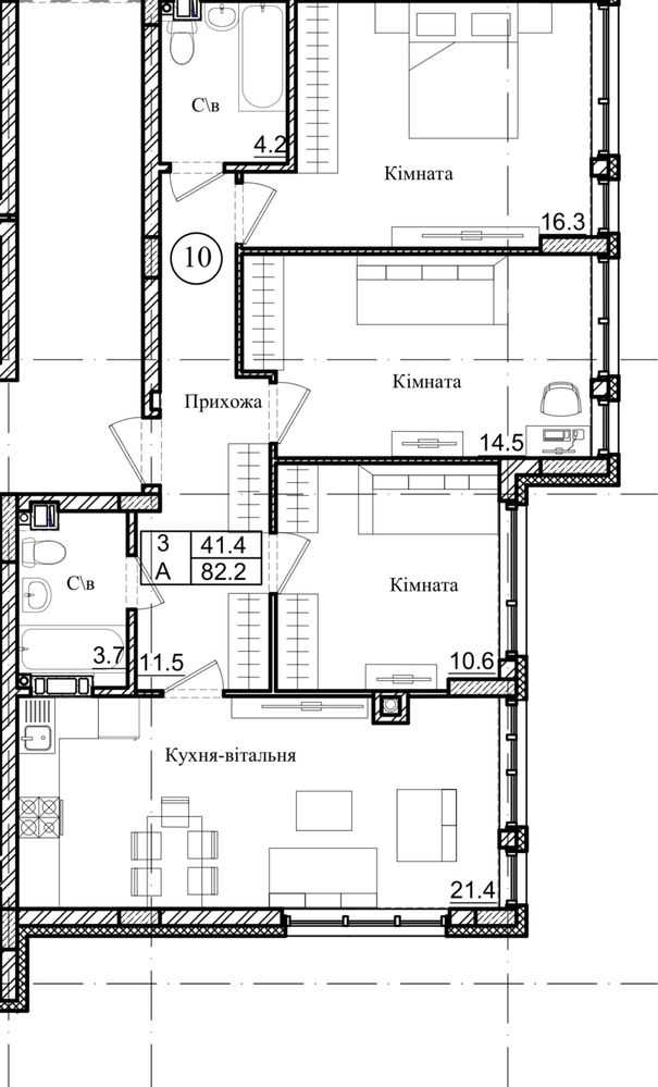
Пропонується 3-кімнатна квартира площею 82,2 м² у ЖК "Петрівське містечко". Розташована на вулиці Володимирська, 36А, у будинку бізнес-класу. Будинок обладнаний великими холами, двома ліфтами, а також має вхід з вулиці та внутрішньої частини двору. Квартира постачається з котлом, стяжкою та штукатуркою.














