
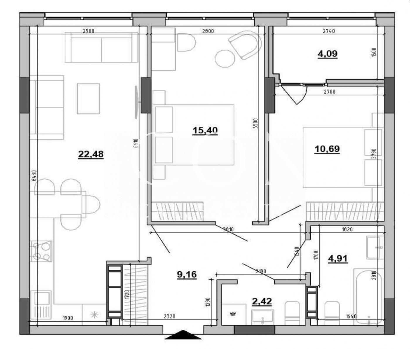
Пропонується 3-кімнатна квартира площею 70 м² у ЖК Sister, розташованому на вул. Клеманська, 3, Дарницький район, Київ. Квартира складається з двох окремих кімнат (16 м² та 11 м²) та кухні-студії (23 м²), оснащена лоджію. Будинок побудовано з монолітно-каркасної технології з утепленням мінватою. Висота стель складає 2,7 м. Інфраструктура комплексу підтримує комфортне життя: підземний паркінг, дитячий садок, школа, фітнес-клуб, магазини та кафе.






