
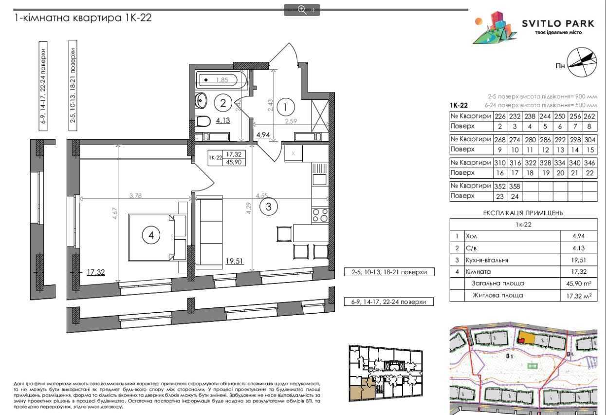
Пропонується на продаж 1-кімнатна квартира площею 46 м² у ЖК SVITLO PARK, Голосіївський район. Розташована на 14 поверсі, квартира має панорамні вікна, які виходять у двір. Простора кухня-вітальня (19,51 м²) та спальня (17 м²) заповнені природним світлом. Виконані всі чорнові роботи, встановлені якісні металеві двері. Комплекс забезпечений інфраструктурою: магазини, аптеки, дитячі садки, спортивний клуб та медичний заклад. Також доступні підземний паркінг та зона для відпочинку.








