
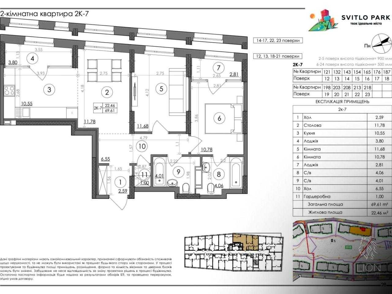
Квартира в житловому комплексі Svitlo Park на Столичному шосе, 5-А, знаходиться в Голосіївському районі Києва. Пропонується двокімнатна квартира площею 68,9 м² з двома окремими кімнатами, двома лоджіями, гардеробною та двома санвузлами. В квартирі встановлені броньовані двері, сталеві радіатори з терморегуляторами. Підлога з фінішною лазерною стяжкою. Комплекс має закриту територію та багаторівневий підземний паркінг. На території розташовані магазини, дитячі та спортивні майданчики.



