
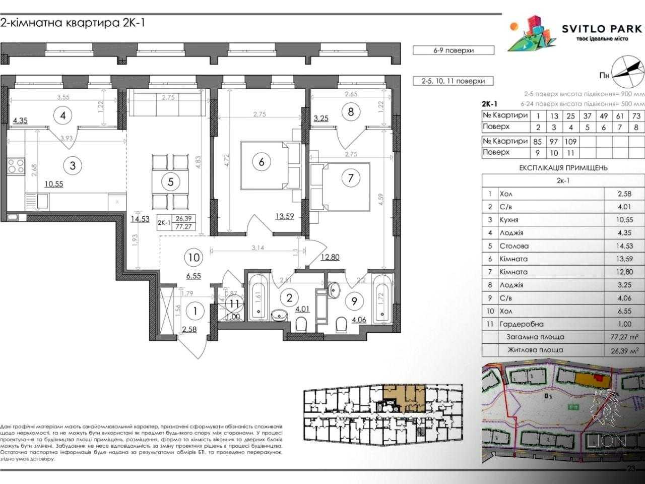
Двокімнатна квартира в ЖК Svitlo Park, розташована на Столичному шосе, 5-А в Голосіївському районі. Площа квартири складає 76,8 м2. У квартирі передбачені дві окремі кімнати, дві лоджії, гардеробна та два санвузли. Вхідні двері броньовані, встановлені сталеві радіатори з терморегуляторами. Передбачено фінішну лазерну стяжку на підлозі. Територія комплексу закрита, є багаторівневий підземний паркінг, дитячі й спортивні майданчики, а також комерційні заклади, такі як «Фора» та кавʼярні. 1 км до метро Видубичі.



