
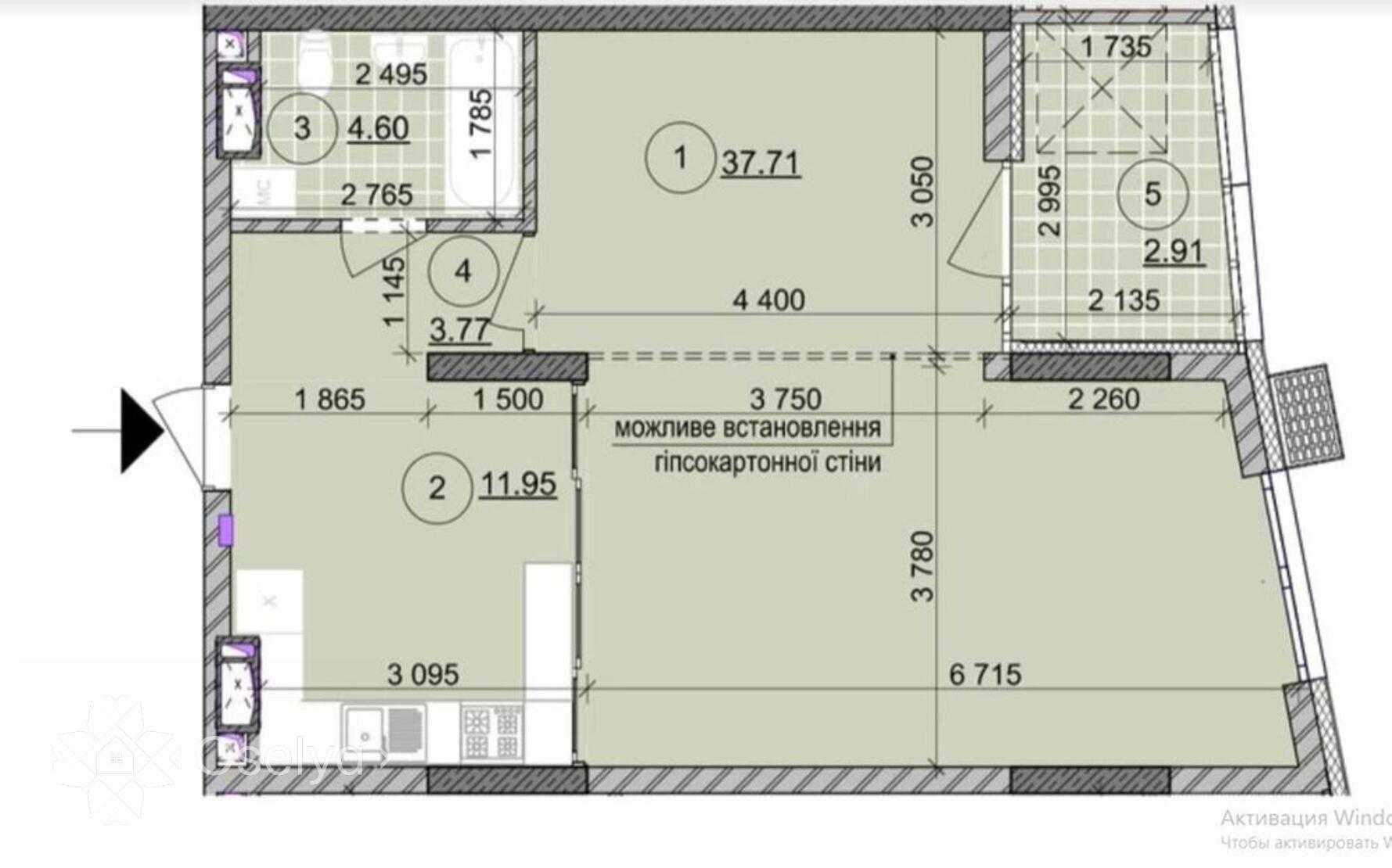
Пропонується 1-кімнатна квартира в ЖК «Русанівська Гавань» з прямим видом на Дніпро. Загальна площа квартири становить 63,8 м², розташована на 19-му поверсі 26-поверхового будинку. В квартирі панорамні вікна, нові ліфти, консьєрж, охорона та відеоспостереження. На території розташовані магазини, кав’ярні та дитячий садок. Це ідеальне місце для комфортного життя, з власною набережною для прогулянок та розвиненою транспортною інфраструктурою.















