
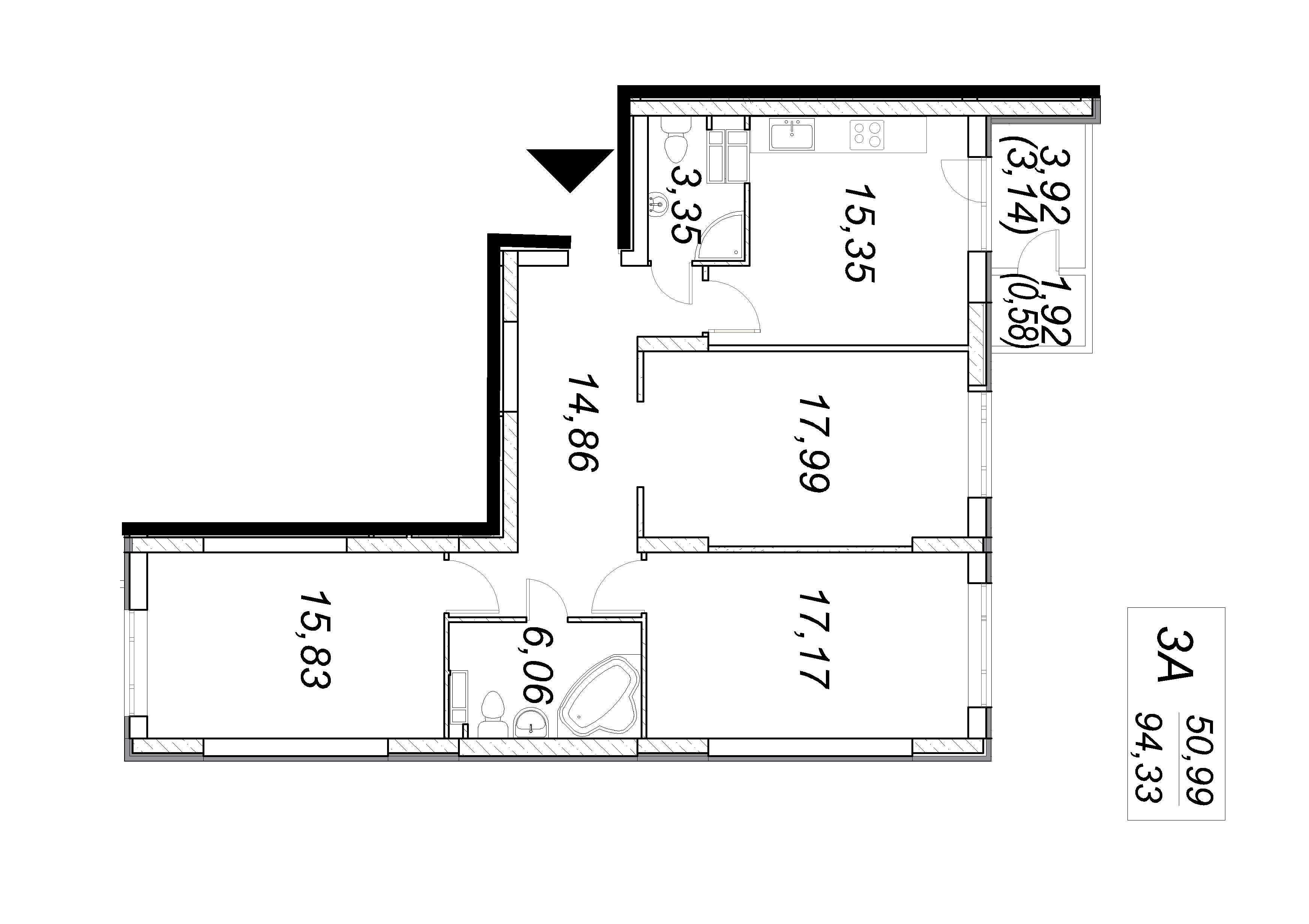
Пропонують 3-кімнатну квартиру площею 94.4 м² у житловому комплексі NAVIGAT 1, який розташований на провулку Балтійському 3А в Оболонському районі Києва. Квартира у монолітно-каркасному будинку з утепленням мінеральною ватою. У квартирі встановлено індивідуальні лічильники на тепло, електроенергію та воду. Простір після забудовника дозволяє здійснити перепланування. На території ЖК розвинута інфраструктура з магазинами, кав'ярнями та дитячими майданчиками. Поруч зупинки громадського транспорту, супермаркети та парки.






