
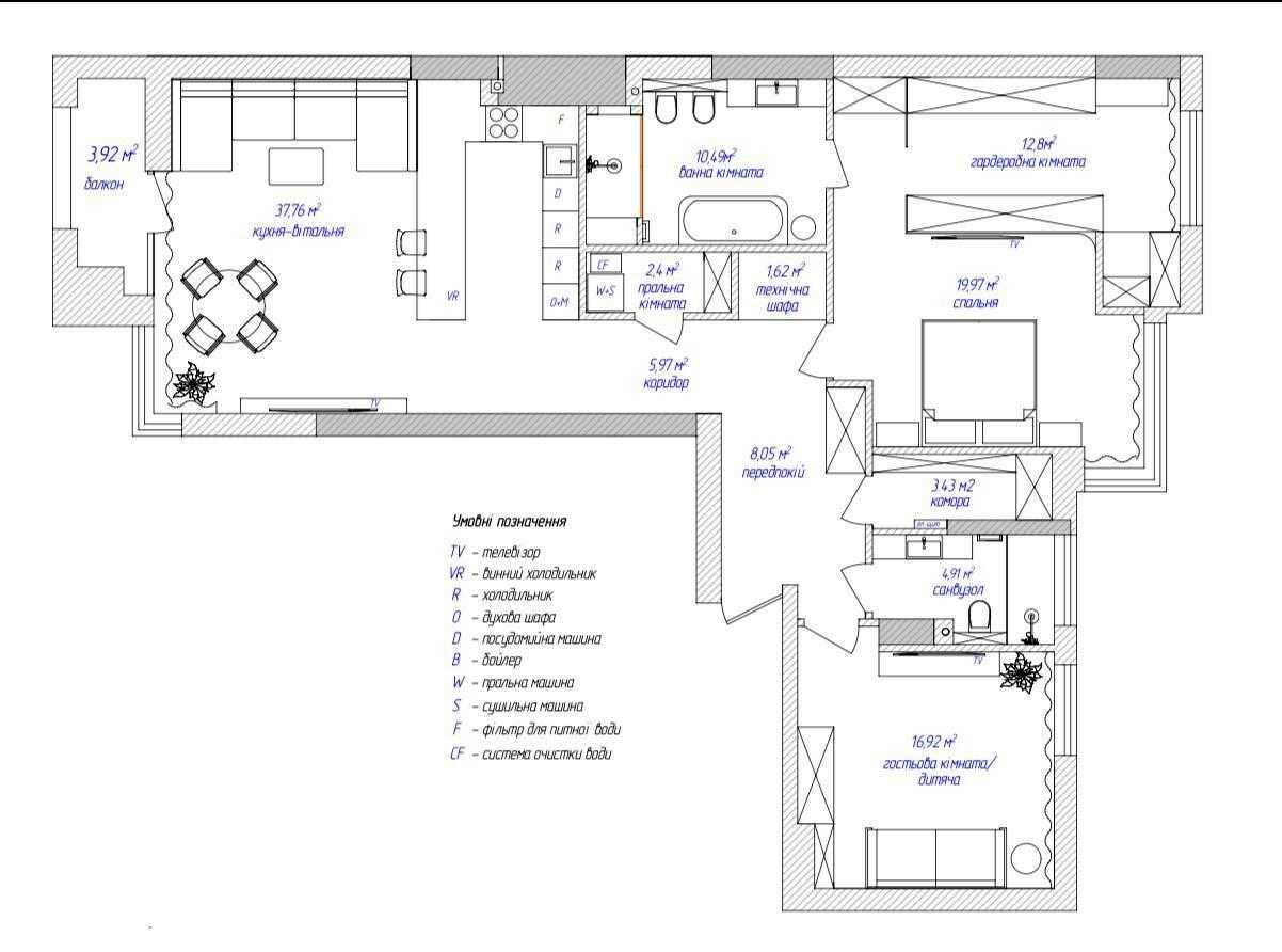
Квартира розташована в ЖК Crystal Park Tower, на Берестейському проспекті, в Шевченківському районі Києва. Просторний інтер'єр з сучасним дизайном, включає затишну вітальню з кухонною зоною та островом. Спальня обладнана гардеробною кімнатою та власною ванною. Окрема кімната для гостей або дитячої та пральня з сушильною машиною. Якісні оздоблювальні матеріали, включаючи італійську сантехніку, систему кондиціонування Daikin та розумне управління. Додатково передбачено машиномісце в паркінгу.


















