
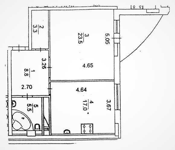
Пропонується простора 1-кімнатна квартира в престижному ЖК "Парковий" на вулиці Миколи Руденка, 14д. Загальна площа – 60 кв.м., з 23.5 кв.м. кімнатою та 17 кв.м. кухнею-столовою. Висота стель становить 280 см. Квартира має сучасні зручності: кондиціонер, бойлер, вбудовану кухню та великий балкон. У комплексі - консьєрж, ліфт та кодовий замок. Розвинута інфраструктура, в 150 метрах – зупинка швидкісного трамвая. Тихий район з хорошою транспортною розв'язкою.












