
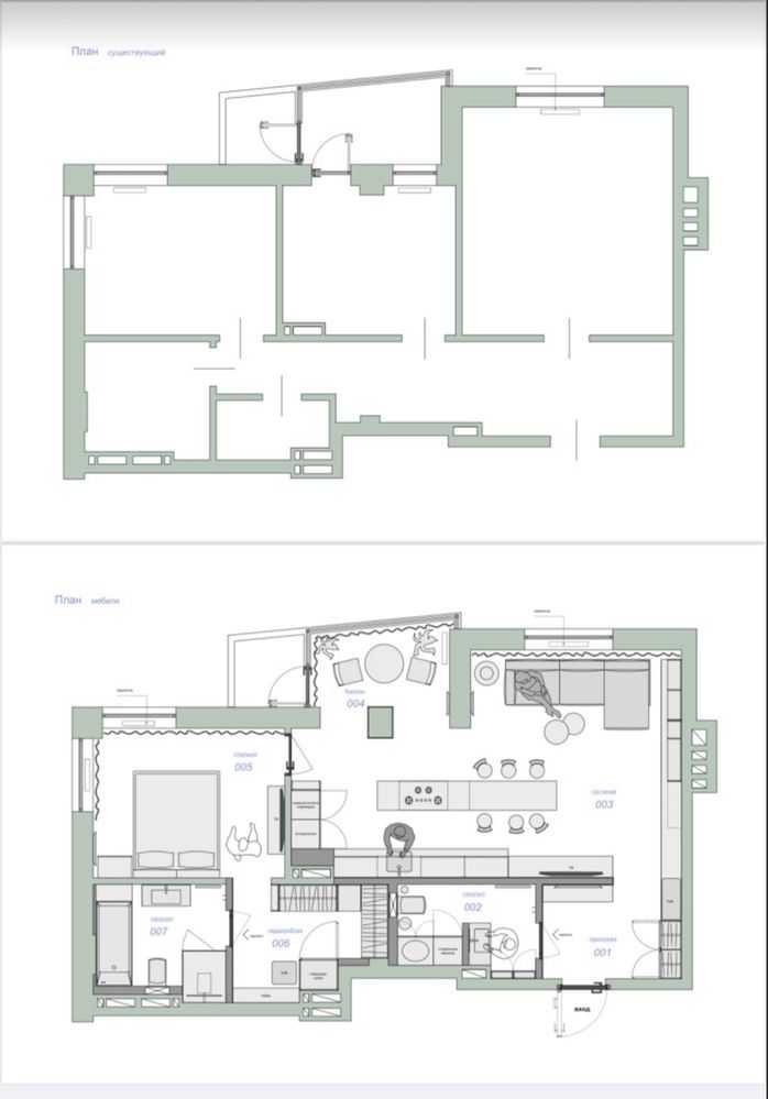
Пропонується квартира у Житловому комплексі "Київський гай", розташованому на вул. Багговутівській/Загорівській. Сучасний будинок з підземним паркінгом та чудовим видом на лісопарк. Внутрішнє планування включає кухню-студію, окрему спальню, гардеробну, ванну кімнату та гостьовий санвузол, а також балкон. У квартирі виконано сучасний ремонт, на підлозі розташований паркет, є підігрів підлоги. У безпосередній близькості розташовані лікарня, зупинка громадського транспорту, аптека та магазини.




