
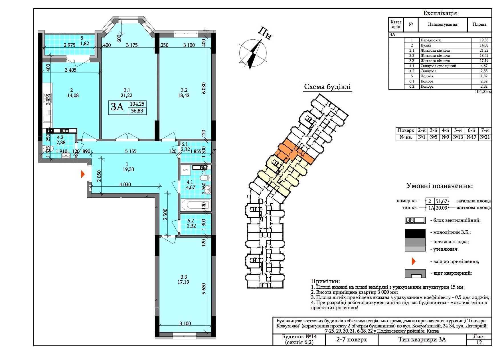
Пропонується простора 3-кімнатна квартира площею 104 м2, що знаходиться в Подільському районі, на вул. Дегтярна, 20А. Квартира розташована на 7-му поверсі 7-поверхового будинку, який вже введено в експлуатацію. Високоякісні матеріали та сучасні рішення в дизайні роблять цей простір комфортним для проживання.








