[1820562] Продається 3-кімнатна квартира СоцМісто/Березняки | X-Estate

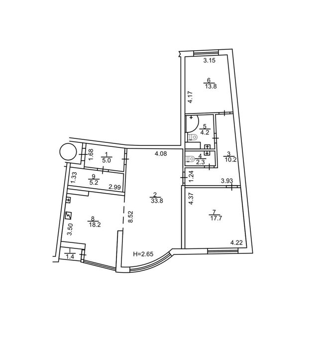
Пропонується квартира на Дніпровській Набережній у Дарницькому районі. Загальна площа становить 120 м2. Унікальне планування включає кухню-вітальню, дві окремі кімнати та два санвузли. Виконано якісний ремонт, встановлено дубовий паркет, вбудовану техніку та кондиціонери, також забезпечено теплу підлогу. Квартира мебльована та має шафи-купе. З вікон відкривається красивий вид на Дніпро. У будинку є консьєрж, на території – тихий зелений двір та дитячий майданчик. Поряд розташовані школа, дитячі садки та супермаркети.