
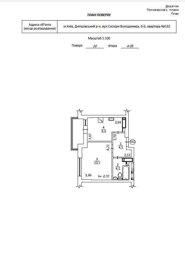
Пропонується квартира в ЖК Дніпровська Мрія на Дарницькій площі. Розташована на 20 поверсі 26-поверхового будинку, загальною площею 36 кв.м. Житлова площа складає 13.7 кв.м., кухня 9.3 кв.м. Виконані стяжка та штукатурка стін, встановлені металеві двері, радіатори та металопластикові вікна. Квартира має просторі вікна з видом на Правий берег, що відкриває чудову панораму. У окрузі розвинена інфраструктура: супермаркети, школи та транспортна розв'язка.






















