
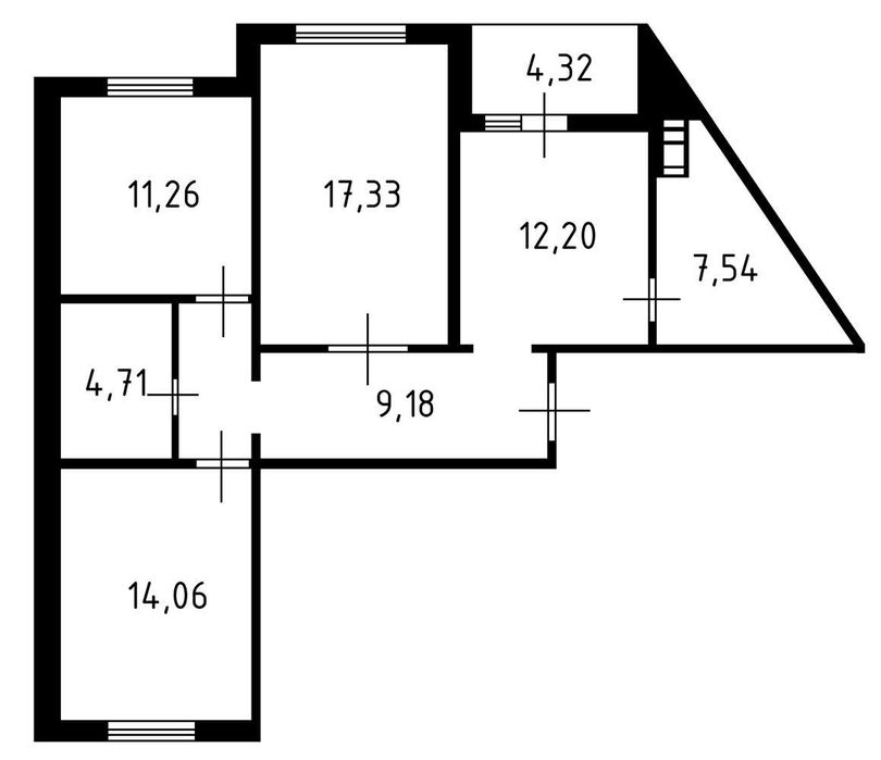
Пропонується 3-к квартира у ЖК "Еврика" на вул. Самійла Кішки, 5 Б. Житло розташоване на 22 поверсі 25-поверхового будинку. Загальна площа становить 82 м², три окремі кімнати. Кухня має засклений балкон, а також два санвузли, обладнані ванною та душем. У квартирі сучасний ремонт, підігрів підлоги в санвузлах, бойлер, два кондиціонери. Є необхідні кухонні меблі та техніка: варочна поверхня, духова шафа, посудомийна та пральна машини. Зручна транспортна розв'язка, близько метро "Іподром" та "Виставковий центр". Розвинута інфраструктура, поруч ТЦ, навчальні заклади, парк ВДНГ.












