
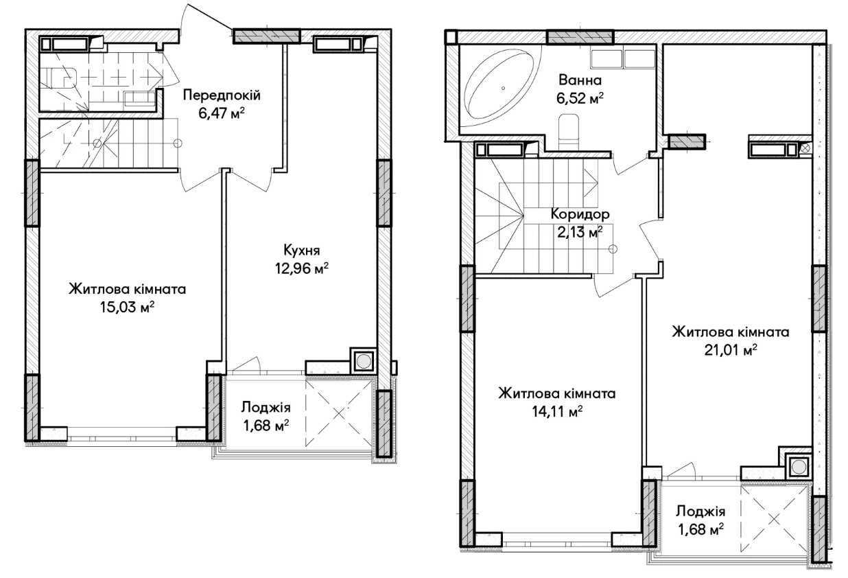
Пропонується простора 3-кімнатна квартира площею 65.95 м² у новому будинку з підземним паркінгом. Квартира має зручне планування та розташована на тихих Позняках з виглядом на озера. На території - закрита зона з ландшафтним дизайном, три швидкісні ліфти OTIS, власна котельня та генератор, що забезпечують комфортне проживання. У пішій доступності розташовані станція метро «Позняки», великі парки, школи, магазини та ТРЦ River Mall.





