
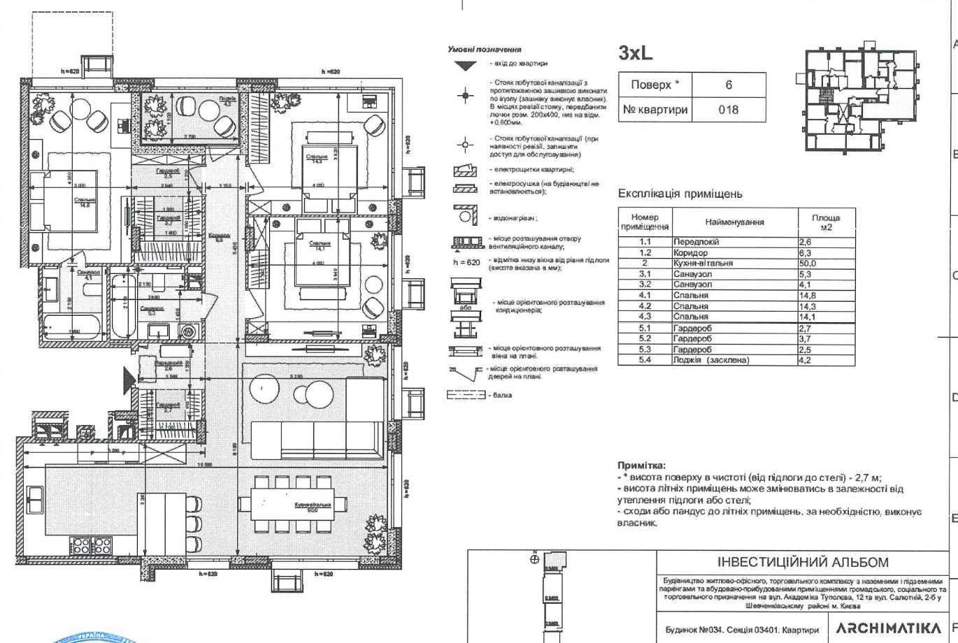
Пропонується 3-кімнатна квартира в ЖК "Файна Таун" площею 124,6 м². У плануванні передбачена велика кухня-вітальня (50 м²) та три окремі спальні (14,1 м², 14,3 м², 14,8 м²). На 6-му поверсі з 7, квартира без ремонту. Комплекс має покращену вхідну групу та розвинену інфраструктуру, включаючи спортивні зони, зону BBQ, гімназію А+ та торговий центр. Прекрасний променад із пішохідними доріжками, велодоріжкою та дитячими зонами. Відстань до найближчої станції метро Нивки – 5 хвилин на машині.






















