
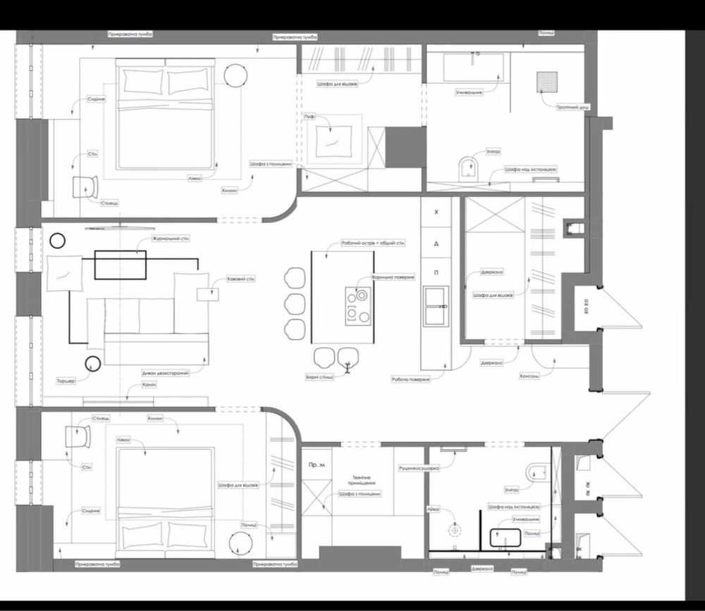
Пропонується до уваги 2-кімнатна квартира у бізнес-класу житловому комплексі TRIIINITY на Печерську. Загальна площа становить 101.65м², квартира знаходиться на 1 поверсі, фактично 3-ій. Вікна виходять на захід, що забезпечує приємне освітлення. Функціональне планування включає простору кухню-вітальню (35м²), дві спальні, гостьовий санвузол, пральню та гардероб. В комплексу передбачено закриту територію, підземний паркінг на два рівні, а також систему опалення з власною котельнею на даху.




