
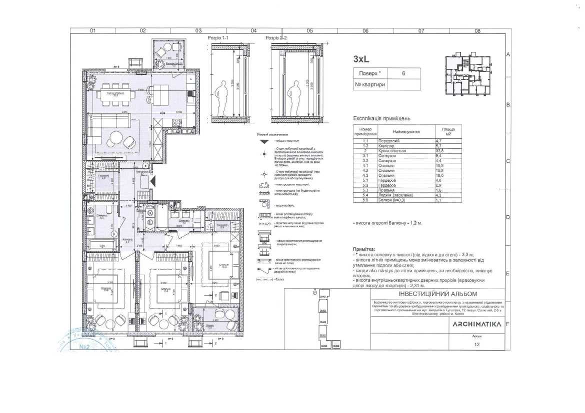
Пропонується 3-кімнатна квартира в ЖК "Файна Таун" з високими стелями 3,3 м. Квартира складається з трьох окремих спалень та просторої кухні-вітальні з панорамним видом на пішохідний міст. Загальна площа складає 117,4 м2, є два санвузли, гардеробна, лоджія та балкон. Комплекс має закриту територію з охороною, кафе, ресторани, супермаркети, аптек та сучасну школу. На території доступні барбекю-зона та басейни, а також реалізується проект резервного живлення.



