
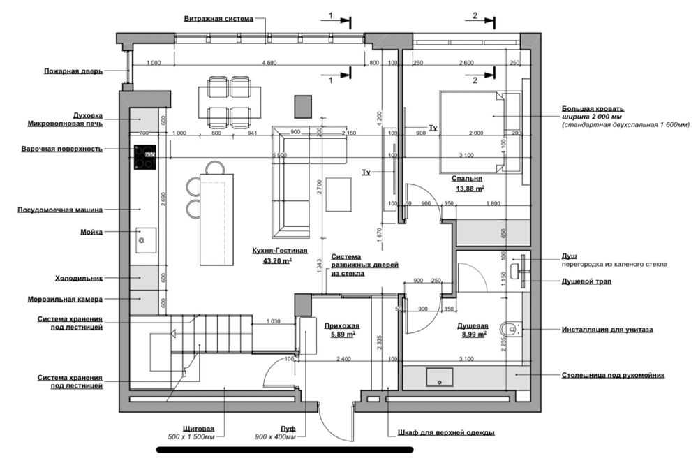
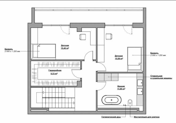
У сучасному ЖК Павловський квартал пропонується 4-х кімнатна 2-х рівнева квартира площею 145 кв.м. Квартира розташована на 19-20 поверхах, з плануванням на 4 спальні, кухню-guest room, санвузол, та гардеробну. З вікон відкривається гарний вид на місто. Підходить для комфортного проживання сім'ї з дітьми.









