 
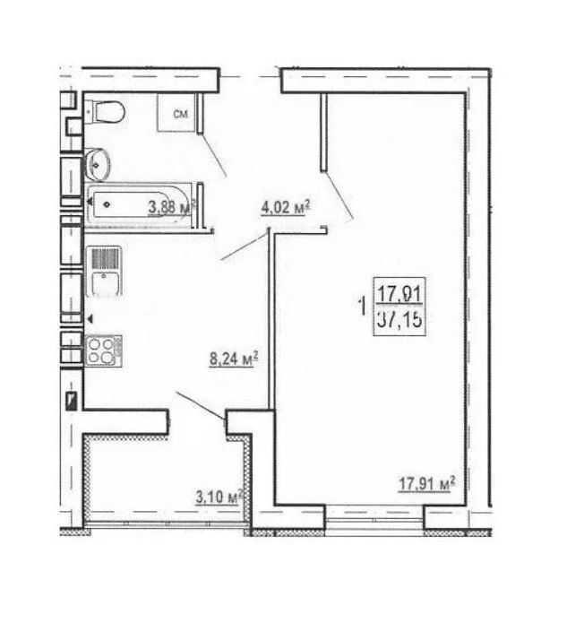
                Пропонується квартира в ЖК Гідропарк, розташована на 4 поверху дев'ятиповерхового будинку. Площа квартири складає 36,7 кв.м. Вікна виходять на річку, що надає затишної атмосфери. Електрика розведена, виконана стяжка підлоги та машинна штукатурка стін.
 
                 
                 
                 
                 
                 
                 
                 
                 
                 
                 
                 
                 
                 
                 
                 
                 
                