[1920656] Продається 3-кімнатна квартира ХТЗ / Масельського | X-Estate

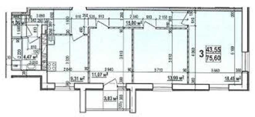
Пропонується 3-кімнатна квартира в ЖК Мира 3, за адресою вулиця Мира 47, на 9-му поверсі. Площа квартири складає 75 м², квартира в будівельному стані з можливістю перепланування. Житловий комплекс має благоустроєну територію, включаючи дитячі та спортивні майданчики, зелені зони, а також парковку. Неподалік розташовані станція метро Індустріальна, школи, садочки, супермаркети та зупинки громадського транспорту.