[1872802] Продається 3-кімнатна квартира Центр | X-Estate

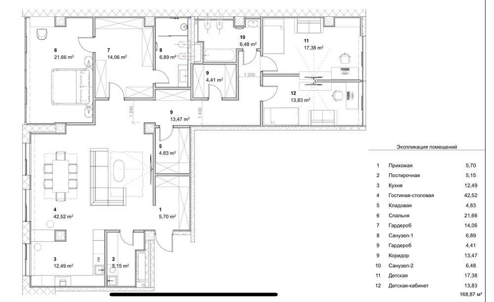
Простора квартира у ЖК «Люксембург» на першому етапі будівництва. Площа складає 172 м² з вільним плануванням. Висота стель досягає 3 м, що надає відчуття простору. Збудована за монолітно-каркасною технологією, стіни виконані з газоблоків, утеплені мінеральною ватою. Комунікації включають газ та автономне опалення. Стан квартири — без ремонту, що дозволяє реалізувати власні дизайнерські ідеї.